330890 Санкт-Петербург, 4 линия В.О. д. 47. Великолепная 2 к.кв. 59.5 кв.м. в одном из престижнейших районов СПб - Василеостровском всего в пяти минутах от метро. Квартира расположена в историческом доходном доме купца Мосягина. Дом 1856 г.п. Толстые кирпичные стены, в которых тепло зимой и прохладно летом. Потолки 3, 45 м. Перекрытия - железобетонные! Последний капитальный ремонт был завершен в 2022 году.
Просторные изолированные комнаты 19,6 и 13 кв.м., окна выходят на 4 линию. Большой коридор 16.8 кв.м. со встроенными шкафами. Кухня интересной планировки 6,4 кв.м. с удобной нишей для хранения и окном, выходящим во двор. Высокий 1 бельэтаж! Чистая парадная, дружные соседи. Закрытый двор с личным парковочным местом.
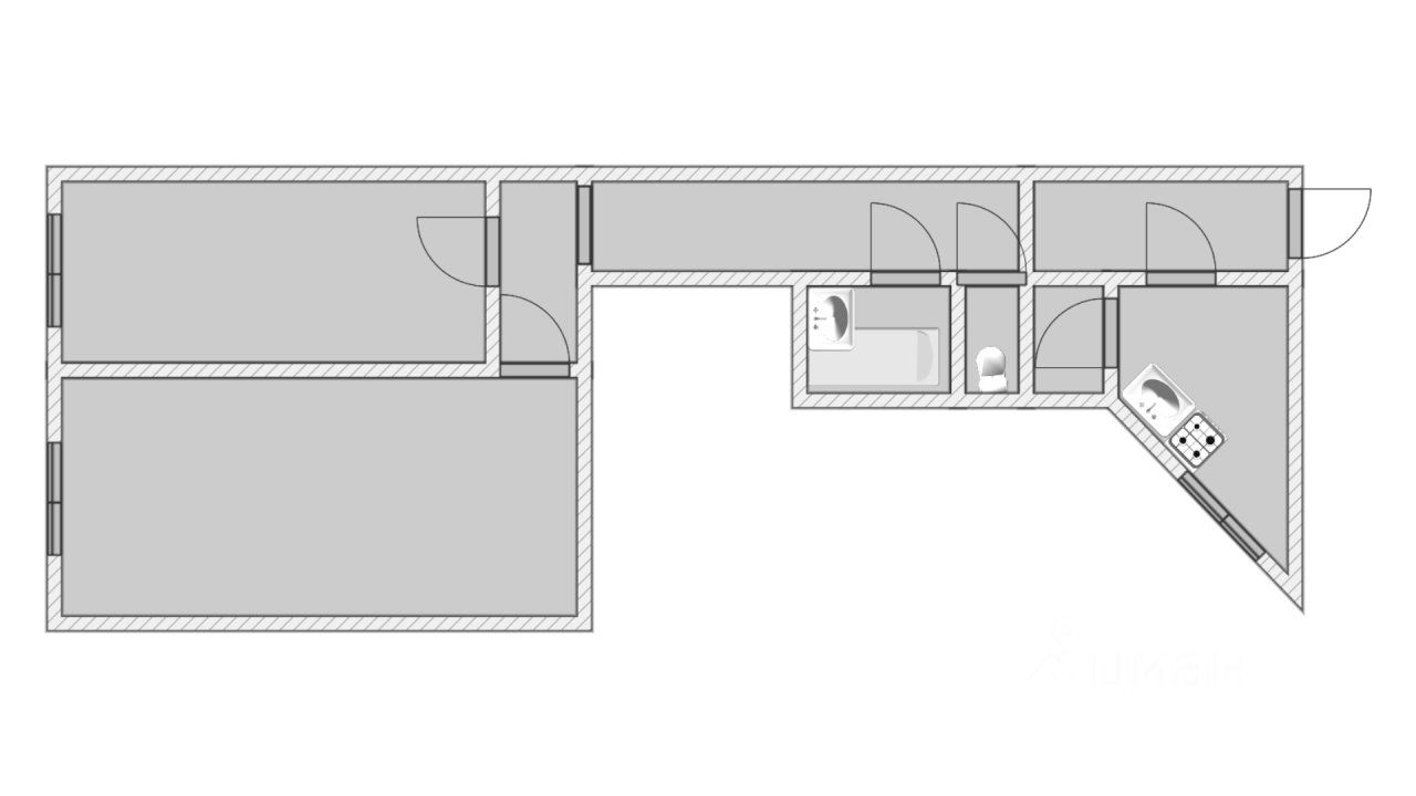
330890 Санкт-Петербург, 4 линия В.О. д. 47. Великолепная 2 к.кв. 59.5 кв.м. в одном из престижнейших районов СПб - Василеостровском всего в пяти минутах от метро. Квартира расположена в историческом доходном доме купца Мосягина. Дом 1856 г.п. Толстые кирпичные стены, в которых тепло зимой и прохладно летом. Потолки 3, 45 м. Перекрытия - железобетонные! Последний капитальный ремонт был завершен в 2022 году.
Просторные изолированные комнаты 19,6 и 13 кв.м., окна выходят на 4 линию. Большой коридор 16.8 кв.м. со встроенными шкафами. Кухня интересной планировки 6,4 кв.м. с удобной нишей для хранения и окном, выходящим во двор. Высокий 1 бельэтаж! Чистая парадная, дружные соседи. Закрытый двор с личным парковочным местом.
Развитая инфраструктура! В шаговой доступности остановки общественного транспорта, две ст. метро, школы, лицей, детские сады, разнообразные продуктовые магазины, пекарни, кафе и др. Недалеко от дома Благовещенская церковь и Благовещенский сад. До стрелки В.О. - 15 минут пешком!
Место потрясающее. Квартира подойдет, как для постоянного проживания, сдачи в аренду, так и для любых коммерческих целей. Два взрослых собственника, без обременений. Подходит под ипотеку, поможем с одобрением. Принимаем любые формы оплаты. Звоните!