Если цена в объявлении изменится, мы сразу сообщим вам об этом на электронную почту.
Нажимая «Подписаться», вы соглашаетесь с правилами.
продам 3-к, Авиационная, 363 800 000 ₽
15 окт 2024
Дата публикации объявления
Обн. 26 окт 2024
Дата обновления объявления
60 800 ₽/м²
Чистая продажа
Термин "Чистая продажа" означает, что в квартире никто не прописан или
есть куда выписаться и вывезти вещи. Это лучший вариант для покупателя.
Вероятность срыва сделки минимальна.
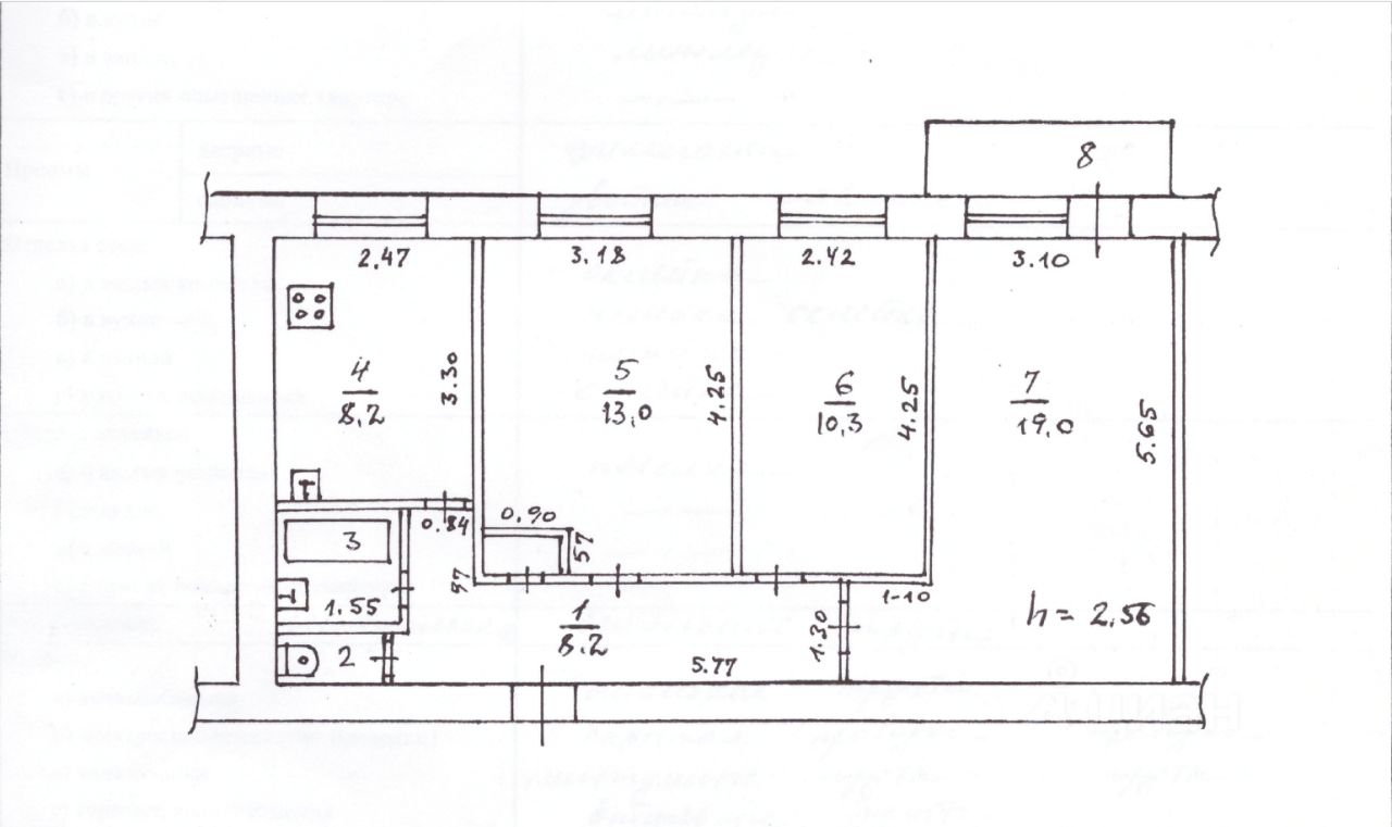
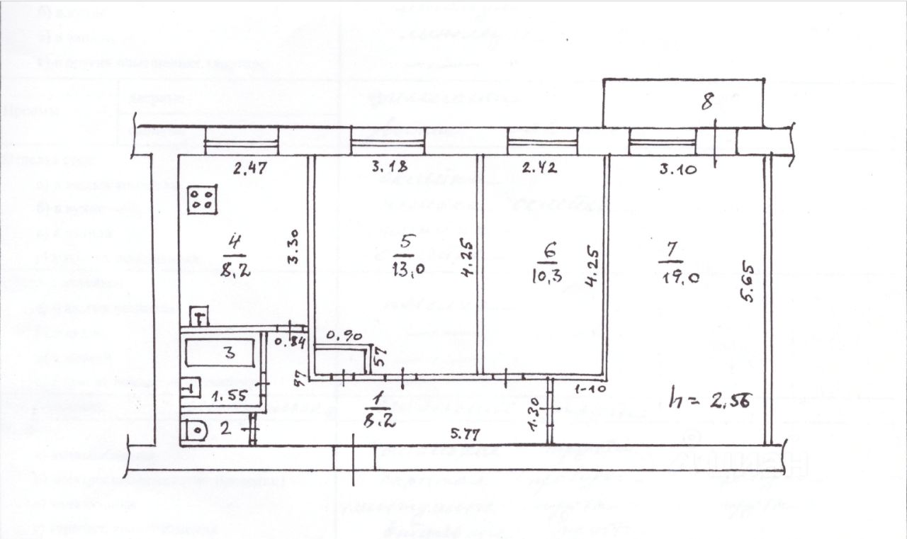
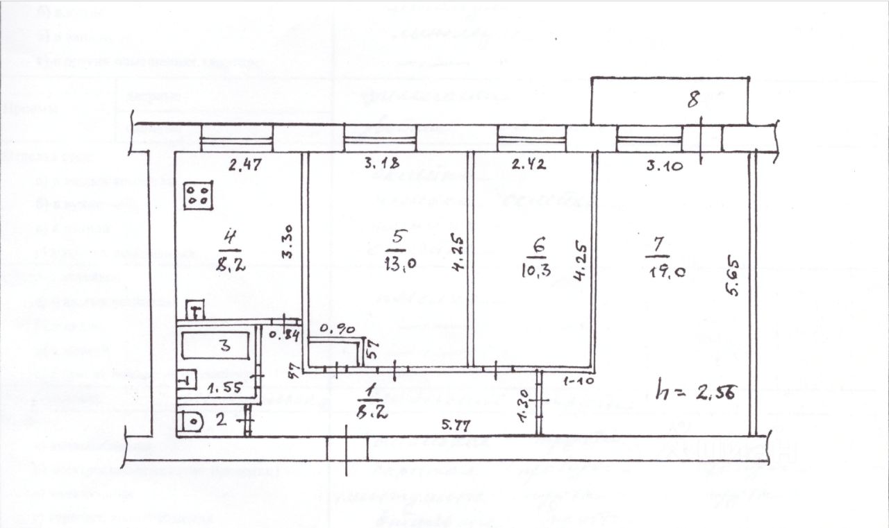
Прямая продажа! Привлекательная цена! Отличное предложение - просторная трехкомнатная квартира удачной планировки в жилом районе в с развитой инфраструктурой. Общая площадь квартиры достойная, 62.5 м². Планировка практичная - комнаты все изолированные, большая гостиная 19 м² с выходом на незастекленный балкон, две уютные спальни 13 и 10.3 м². Удобная кухня 8.2 м². Раздельный санузел. Все окна выходят на запад в зеленый двор. Верхний этаж, квартира не угловая, очень теплая. Квартира в хорошем жилом состоянии, чистая. Все окна металлопластиковые. Ванная комната в кафеле. Сантехника в приличном состоянии. Хороший напор воды. В доме новые лифты. На лестничной площадке отдельная секция на три квартиры закрывается на ключ. Адекватные соседи.
Прямая продажа! Привлекательная цена! Отличное предложение - просторная трехкомнатная квартира удачной планировки в жилом районе в с развитой инфраструктурой. Общая площадь квартиры достойная, 62.5 м². Планировка практичная - комнаты все изолированные, большая гостиная 19 м² с выходом на незастекленный балкон, две уютные спальни 13 и 10.3 м². Удобная кухня 8.2 м². Раздельный санузел. Все окна выходят на запад в зеленый двор. Верхний этаж, квартира не угловая, очень теплая. Квартира в хорошем жилом состоянии, чистая. Все окна металлопластиковые. Ванная комната в кафеле. Сантехника в приличном состоянии. Хороший напор воды. В доме новые лифты. На лестничной площадке отдельная секция на три квартиры закрывается на ключ. Адекватные соседи. Дом расположен в очень удобном для проживания районе нашего города. В пешей доступности все, что нужно для Вашего комфорта: детский сад и средняя школа, детская и взрослая поликлиники широкого профиля, спортивный комплекс, МФЦ, ТЦ, ПВЗ Яндекс, Озон, ВБ, сетевые универсамы Магнит, Пятерочка, Верный, отделение Сбербанка, автобусные остановки. Один взрослый собственник. Быстрый выход на сделку. Квартира освобождена, прописанных и проживающих лиц нет, как и долгов и обременений. Подходящий вариант для встречной сделки, возможен расчет с использованием средств субсидий, мат. капитала, ипотеки. Звоните!