Если цена в объявлении изменится, мы сразу сообщим вам об этом на электронную почту.
Нажимая «Подписаться», вы соглашаетесь с правилами.
продам коттедж, Каменногорское городское поселение (Выборгский район)15 700 000 ₽
17 сен 2024
Дата публикации объявления
Обн. 29 июня 2025
Дата обновления объявления
93 452 ₽/м²
Чистая продажа
Термин "Чистая продажа" означает, что в квартире никто не прописан или
есть куда выписаться и вывезти вещи. Это лучший вариант для покупателя.
Вероятность срыва сделки минимальна.
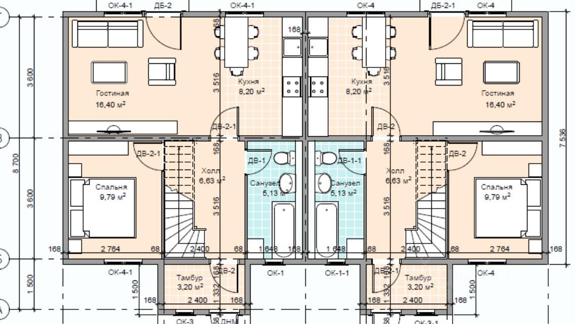
Этажей2
Площадь участка14 соток
Общая площадь168 м2
Материал домабетонные блоки
ЭлектричествоЕсть
Газоснабжениенет
Продается коттедж-дуплекс на две семьи. Общая площадь 164 кв.м. Земельный участок 14 сот. Каждая половина по 82 кв.м. с одинаковой планировкой: На первом этаже кухня-гостиная 24,6 кв.м. с выходом на зеленую территорию. Спальня 10 кв.м. холл 7 кв.м. санузел 5 кв.м. и прихожая 3.2 кв.м. На втором этаже две спальни по 14 кв.м. Участок огорожен зеленным забором из туй. Дом построен из заводских панелей АОА ''Тамак''. Толщина стен 168 мм и дополнительно утепленный плитой из пеноплекса 50 мм. Дом выполнен под ключ с полной меблировкой. Задний двор с постройками и по всему периметру замощено брусчаткой. Центральное водоснабжением. Электричество 15 квт мощность. Канализация септик. Отопление электричество и камин.
Продается коттедж-дуплекс на две семьи. Общая площадь 164 кв.м. Земельный участок 14 сот. Каждая половина по 82 кв.м. с одинаковой планировкой: На первом этаже кухня-гостиная 24,6 кв.м. с выходом на зеленую территорию. Спальня 10 кв.м. холл 7 кв.м. санузел 5 кв.м. и прихожая 3.2 кв.м. На втором этаже две спальни по 14 кв.м. Участок огорожен зеленным забором из туй. Дом построен из заводских панелей АОА ''Тамак''. Толщина стен 168 мм и дополнительно утепленный плитой из пеноплекса 50 мм. Дом выполнен под ключ с полной меблировкой. Задний двор с постройками и по всему периметру замощено брусчаткой. Центральное водоснабжением. Электричество 15 квт мощность. Канализация септик. Отопление электричество и камин. Коттеджный поселок под круглосуточной и круглогодичной охраной. Расположен на берегу большого озера со своим пляжем. Вокруг лес. Если вы ищете место отдыха и проживания без суеты и в полном покои, при этом хотите полный городской комфортный быт. То это для вас. Дороги все в отличном состоянии. Рядом магазины.