Арт. 71912672 В апарт комплексе Берег Курортный продаем однокомнатный апартамент .
Корпус WOOD, самое классное расположение , вид на лес, тишина и приватность.
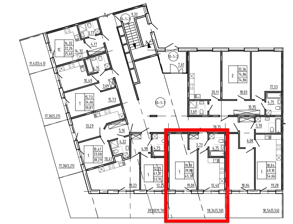
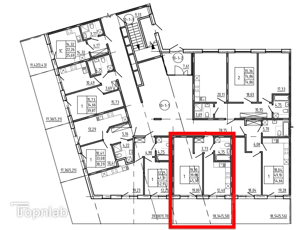
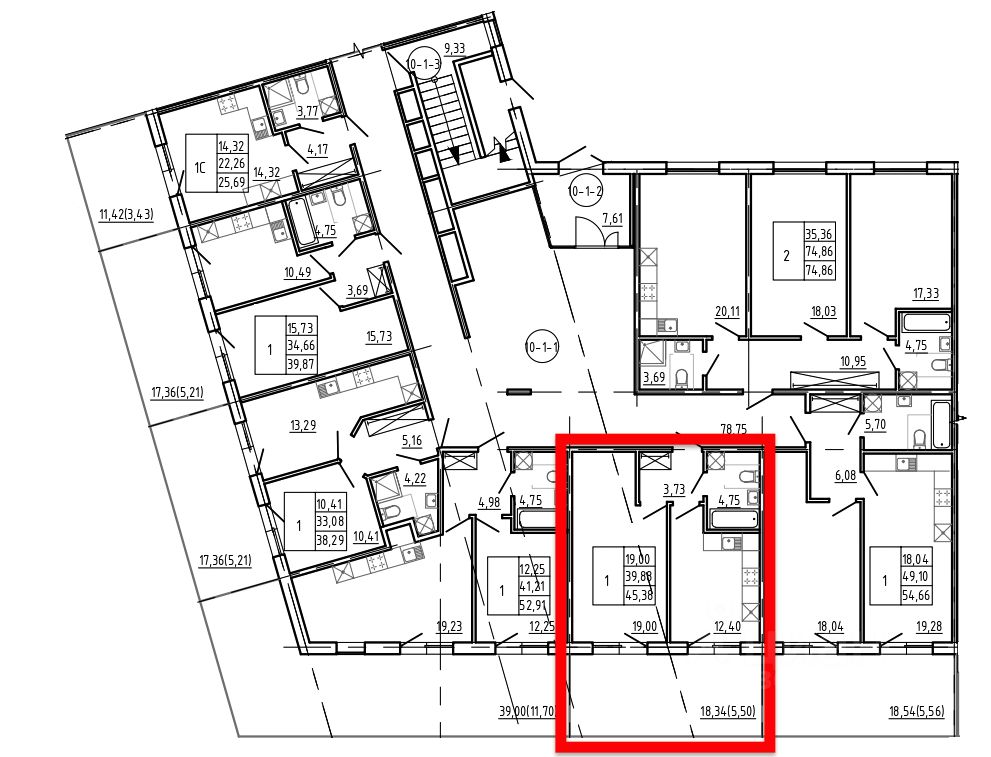
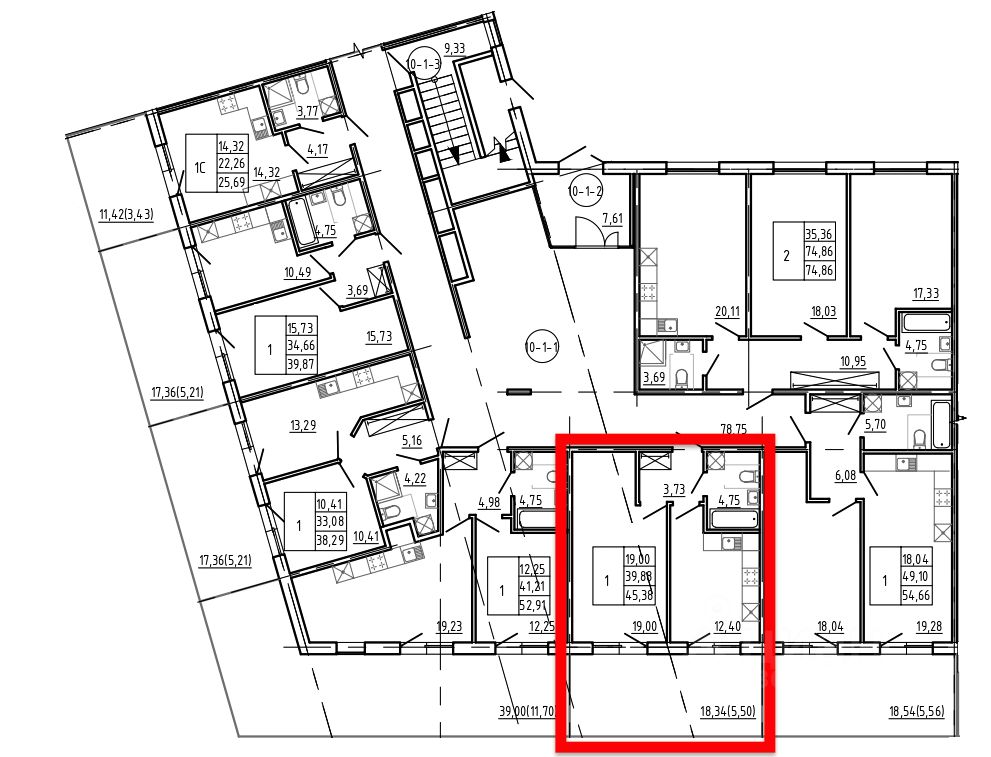
1 этаж из 5
Площадь номера 39.88квм+ 18.34 квм терраса
Кухня - 12.4 квм
Комната - 19 квм
Коридор - 3.73 квм
Совмещенный санузел - 4,75 квм
Предчистовая отделка.
Терраса это любовь с первого вгляда, на нее просто нужно выйти
Очень классный комплекс, идеально под сдачу или личное проживание.
ДОКУМЕНТЫ:
1 взрослый собственник
Покупали за наличные
В договоре полная стоимость
Так же в продаже соседняя квартира, с террасой большего метража.

















