Если цена в объявлении изменится, мы сразу сообщим вам об этом на электронную почту.
Нажимая «Подписаться», вы соглашаетесь с правилами.
продам дом, Пулеметчика Звонова, 26 750 000 ₽
6 дек 2023
Дата публикации объявления
Обн. 6 дек 2023
Дата обновления объявления
35 489 ₽/м²
Чистая продажа
Термин "Чистая продажа" означает, что в квартире никто не прописан или
есть куда выписаться и вывезти вещи. Это лучший вариант для покупателя.
Вероятность срыва сделки минимальна.
Этажей2
Площадь участка25 соток
Общая площадь190,2 м2
ЭлектричествоЕсть
Газоснабжениецентральное
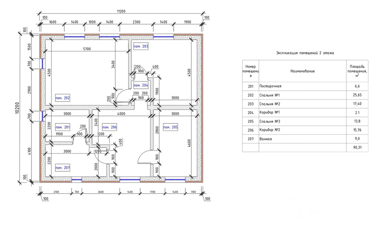
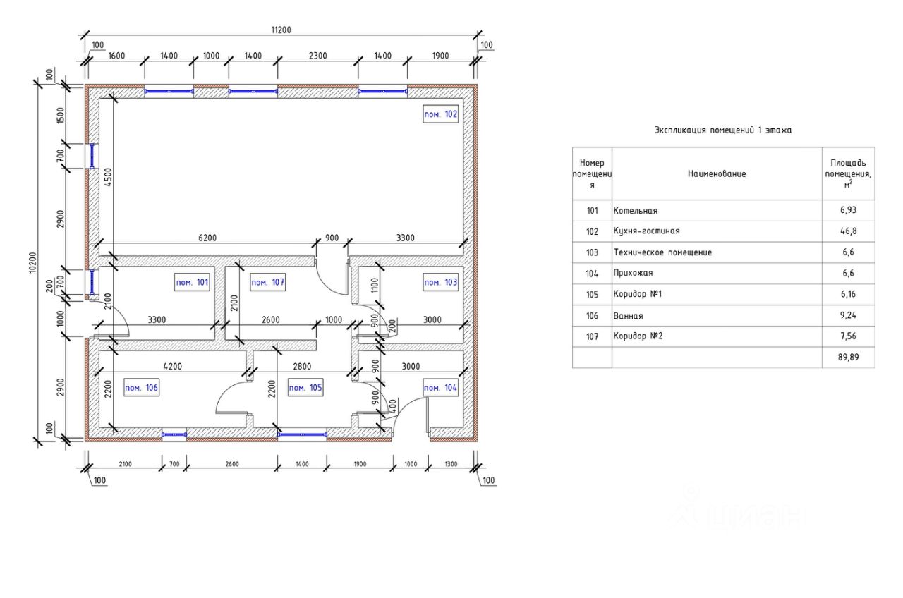
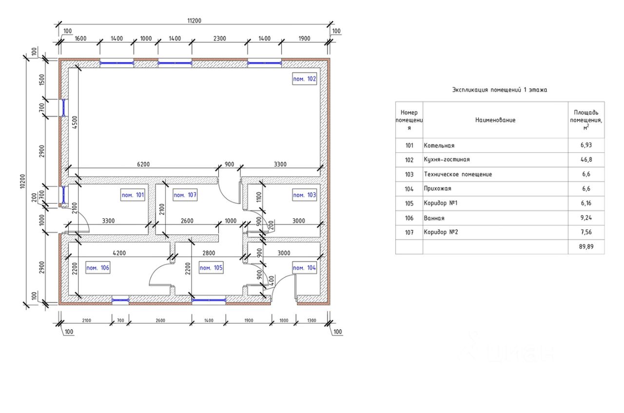
2-х этажный дом, общей площадью 190 м2, находится в деревне Парицы Гатчинского района. Размер дома 11х10 метров, построен из газобетона 300х600мм на монолитной ленте общей высотой 2 метра и углубленной на 1,5 метра, сделана отсыпка и подготовка для монтажа и теплого пола, установлены двухкамерные стеклопакеты фирмы REHAU, на первом этаже располагается кухня-гостиная 46,8 м2, совмещенный санузел 9,2 м2, котельная 6,9 м2 с отдельным входом с улицы, техническое помещение 6,6 м2, прихожая 6,6 м2, коридор 6м2, лестничная площадка 7,5 м2, на втором этаже 3 спальни 26, 17 и 14 м2, совмещенный санузел 9м2, постирочная 6,6 м2, коридор 17 м2 и лестничная площадка 15,7 м2. К дому подключено электричество, ГАЗовая магистраль вдоль забора, только подвели, можно заниматься подключением.
2-х этажный дом, общей площадью 190 м2, находится в деревне Парицы Гатчинского района. Размер дома 11х10 метров, построен из газобетона 300х600мм на монолитной ленте общей высотой 2 метра и углубленной на 1,5 метра, сделана отсыпка и подготовка для монтажа и теплого пола, установлены двухкамерные стеклопакеты фирмы REHAU, на первом этаже располагается кухня-гостиная 46,8 м2, совмещенный санузел 9,2 м2, котельная 6,9 м2 с отдельным входом с улицы, техническое помещение 6,6 м2, прихожая 6,6 м2, коридор 6м2, лестничная площадка 7,5 м2, на втором этаже 3 спальни 26, 17 и 14 м2, совмещенный санузел 9м2, постирочная 6,6 м2, коридор 17 м2 и лестничная площадка 15,7 м2. К дому подключено электричество, ГАЗовая магистраль вдоль забора, только подвели, можно заниматься подключением. Участок 25 соток, огорожен забором, засеян хорошим газоном, посажен плодоносный сад, а также есть вспомогательный домик. Хорошее транспортное сообщение, маршрутки до Гатчины каждые 10-15 минут, автобусная остановка в 5 минутах ходьбы, ж/д станция Гатчина-Балтийская 15-20 минут пешком, Санкт-Петербург(КАД) - 30 км. Ближайшие населенные пункты: Тайцы, Красное Село, Павловск, Малое Верево. Прямая продажа, проведено межевание участка, земля и дом в собственности, возможна ипотека, звоните, всё расскажу и покажу!