Офисное помещение
Большая Разночинная, 14 Показать на карте
Большая Разночинная, 14 Показать на карте
Чкаловская, 5 мин
Санкт-Петербург
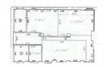
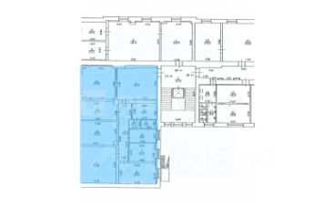
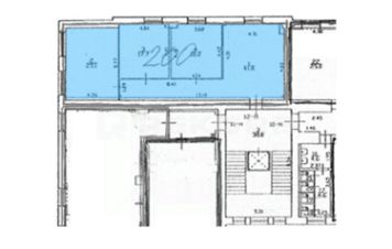
Аренда офиса 199.7 кв.м недалеко от метро.Подписание договора аренды напрямую с владельцем помещения. Работаем без комиссии, процентов и надбавок.В арендную ставку включено: - коммунальные услуги, включая электроэнергию,- уборка офиса,- уборка общих мест.В арендную ставку не входит: эксплуат.расходы, интернет.• условия договора: 11 мес. предоплата за первый и последний месяц,• налогообложение: НДС или УСН,• вход в здание: для арендаторов по документу, для клиентов по документу,• интернет провайдеры: Простор-Телеком, Вест Колл, Смарт-Телеком, Ростелеком, Обит, Силанка, МТС,• парковка: на территории БЦ,• здание работает: круглосуточно,Показы с 10.00 до 18.00 по будням.Получите подробную информацию об офисе. Отправим ее на почту или по Whatsapp.Для организации просмотра и для получения консультации по условиям аренды звоните.Для вас наши услуги бесплатны, их оплачивает БЦ.Описание бизнес-центра:, а также Чкаловский проспект. Рядом со зданием охраняемая стоянка. Планировка офисов открытая, что создает широкие возможности по планированию рабочего пространства.
199 м2
- Показать контакты
- Добавить в избранное
199 м2
399 400 /мес.
2 000 /м2
