Мы объединились! Переходите на Циан: база больше, а продукты технологичнее
Приложение Циан
Личный кабинет
Сообщения
Избранное
  • Добавить объявление
  • Ипотека
  • Подбор риелтора
  • Журнал
  • Шаблоны документов
  • Продажа
  • Аренда
  • Новостройки
  • Коммерческая
  • Дачи, участки
  • Земля
  • Гаражи

Продажа недвижимости

26 937 объяв.
1/20
8 800 000 ₽
3-к, Железнодорожная (Володарский), 30
Пушкинский район
54 м² · Этаж 4 из 4
Построен в 1962
2-06, Предлагаем вам купить трехкомнатную квартиру общей площадью 54,4 кв.м. в кирпичном доме 1962 г.п. Квартира расположена на 4-м этаже, комнаты изолированные, площадью 14+11+11 кв.м, площадь кухни 5 кв.м, санузел раздельный. Квартира двухсторонняя, имеется балкон, установлены стеклопакеты. В доме был произведен капитальный ремонт- была заменена крыша и установлены новые радиаторы отопления, сделан ремонт в парадной. Дом расположен в глубине микрорайона, далеко от железной дороги, есть свободная парковка во дворе. В шаговой доступности вся инфраструктура: дет./садик, школа, магазины, Сбербанк. Удобная транспортная доступность до ж/д станции Царское село 3 минут пешком , до м. Московская, Купчино 15 мин без пробок. Три взрослых собственника, никто не прописан, квартира без обременений и детских долей. Продается в прямой продаже. Юридическое сопровождение сделки. Квартира подходит под ипотеку и субсидии, возможно приобретение с использованием материнского капитала. В случае необходимости, Бесплатно поможем Вам с одобрением ипотеки. При покупке этой квартиры Вы получаете скидку от 0,3% на вашу утвержденную банком ипотечную ставку на весь срок ипотечного кредита. Готовы рассматривать покупателей с разными формами финансирования. Заинтересовало это предложение? Расскажем, покажем в любое время и ответим на все вопросы. Звоните!
1/20
16 300 000 ₽
1-к, Дибуновская, 50
Приморский район
55 м² · Этаж 3 из 25
Построен в 2005
Продается уютная и просторная однокомнатная квартира в современном жилом комплексе. Общая площадь квартиры составляет 55.9 кв. м, жилая площадь — 30 кв. м, а кухня — 17.58 кв. м. Квартира расположена на 3 этаже 25-этажного монолитно-кирпичного дома, построенного в 2005 году. Высокие потолки 3 метра создают ощущение дополнительного пространства. Из окон открывается вид во двор, что обеспечивает тишину и спокойствие. В квартире сделан современный евроремонт. Просторная кухня позволяет не только готовить, но и собираться всей семьей за обеденным столом. Совмещенный санузел выполнен в светлых тонах и оборудован всей необходимой сантехникой. В комнате и на кухне установлена НОВАЯ качественная мебель, что делает жилье полностью готовым к проживанию. Также имеется балкон для приятного времяпрепровождения на свежем воздухе. Дом находится в отличном состоянии и оборудован тремя пассажирскими лифтами, что обеспечивает комфортное передвижение. Для удобства автовладельцев предусмотрена наземная парковка. Жилой комплекс окружен всей необходимой инфраструктурой, что делает его идеальным местом для жизни. В шаговой доступности находятся школы, детские сады и магазины. До ближайшей станции метро можно дойти всего за 9 минут пешком, что позволяет быстро добраться до центра города и других районов. Продажа квартиры осуществляется по договору купли-продажи. Обременений и юридических препятствий нет, поэтому сделка пройдет быстро и без проблем. Возможна покупка в ипотеку. Звоните и записывайтесь на просмотр! Эта квартира может стать вашим новым уютным домом.
1/21
17 900 000 ₽
2-к, Лиственная, 18 корп. 1
Выборгский район
63 м² · Этаж 2 из 23
Построен в 2016
Продаем евротрешку. Один взрослый собственник. Документы в порядке. Высота потолков — 2,8-2,75 м. 2 спальни. 1 кухня-гостиная. Ванна и туалет раздельные. Общая площадь — 63,3 м² + бонусом 7 м² подоконников (место для зимнего сада). В квартире сделана отличная инженерия (вода, электричество). Универсальная разводка легко адаптируется под ваш образ жизни. Европейская сантехника. Водонагреватель на время летнего отключения воды. Покрытие стен требует обновления. Комфортная планировка. Квартира продается с мебелью, по договоренности. В доме 3 лифта. Колясочная. 200 метров до парка Сосновка. Сосновка по размеру больше княжества Монако. Губернатор Петербурга курирует лично парк и руководил проектом освещения. Возле дома построены детский сад с бассейном и лицей с бассейном. Квартира расположена в самом выгодном месте по приближенности к школе и парку. Возле дома имеются 2 крытые платные парковки и 1 открытая. До метро Озерки — 17-20 минут пешком. 6-7 минут до автобусной остановки. 2-й этаж, окна выходят на противоположную от детской площадки сторону, что гарантирует тишину в любое время суток. Самый престижный и комфортный микрорайон Выборгского района. Вдалеке от панельных домов. Развитая инфраструктура. Риелторы, агенты - просьба не беспокоить!
1/16
4 750 000 ₽
1-к, Тамбасова, 38/235
Красносельский район
31 м² · Этаж 1 из 5
Квартира расположена в экологически благополучном районе с озелененным двором, в шаговой доступности от парковых зон. Район обладает развитой социальной и коммерческой инфраструктурой: вблизи находятся детские сады 32 и 37, школы и гимназии 505 и 390 с углубленным изучением иностранных языков. Для повседневных нужд в окружении представлены медицинские центры, поликлиники, сетевые магазины ''Пятерочка'', ''Карусель'', банковские отделения, МФЦ, фитнес-клуб ''Фитнес Хаус'', рестораны и разнообразные спортивные площадки. Транспортная доступность является ключевым преимуществом: остановка общественного транспорта расположена у дома, а пешая прогулка за пять минут до железнодорожной станции Лигово позволяет быстро добраться до центра Санкт-Петербурга или Петергофа, минуя автомобильные пробки. Также обеспечен удобный выезд на Кольцевую автодорогу. Объект находится в юридически чистом состоянии: единственным собственником является взрослый дееспособный человек, в квартире никто не зарегистрирован, что гарантирует быструю и прямую сделку без скрытых обременений. Просмотр по предварительной договоренности ! Код пользователя: 184775 Номер в базе: 10149786
1/21
9 990 000 ₽
2-к, Русановская, 19 корп. 3
Невский район
58 м² · Этаж 15 из 23
Построен в 2015
Арт. 128259825 Просторная двухкомнатная квартира в ЖК ''Ласточкино гнездо'' Предлагаем к приобретению светлую и удобную двухкомнатную квартиру от застройщика ''ЛенСпецСМУ'' в современном жилом комплексе. Основные характеристики: Общая площадь: 58,4 м2 (плюс балкон — 4,1 м2). Жилые комнаты: 17,8 м2 и 14,3 м2. Просторная кухнягостиная: 12,0 м2. Прихожая: 8,4 м2. Окна выходят на две стороны — обеспечивается отличная инсоляция и проветривание. О доме и комплексе: Кирпичномонолитный дом, сдан в 2015 году. Видеонаблюдение и консьерж — безопасность жильцов на высоком уровне. Многоуровневый паркинг — удобное хранение автомобиля. Развитая внутренняя инфраструктура: физкультурнооздоровительный комплекс, школа с бассейном и футбольным полем, детский сад. На первых этажах — коммерческие помещения: магазины, салоны красоты, кафе, пекарни, стоматология, аптеки и др. Транспортная доступность: Остановки общественного транспорта — в шаговой доступности. До станции метро ''Ломоносовская'' — 15 минут на транспорте. Юридическая чистота: Один собственник. Нет обременений и перепланировок. Никто не прописан. Квартира свободна — возможен оперативный выход на сделку. Дополнительно: Квартира подходит для приобретения в ипотеку. Будем рады организовать показ в удобное для вас время! Звоните — ответим на все вопросы и договоримся о просмотре.
1/44
64 885 000 ₽
3-к, Смольный проспект, 17
Центральный район
103 м² · Этаж 7 из 7
Построен в 2017
Арт. 128256260 Предлагается к продаже трехсторонняя 3-х комнатная квартира в ЖК бизнес-класса ''Смольный проспект'', построенным известной своим высоким качеством - финским застройщиком ЮИТ. Здание кирпично-монолитное, внутренние стены и перекрытия запроектированы с учетом повышенных требований к звукоизоляции. Квартира расположена на последнем 7-ом этаже в центре жилого комплекса. В корпусе расположены всего 2 парадные. На этаже 5 квартир. Все окна выходят в благоустроенный двор с авторским ландшафтным дизайном и озеленением. От шумового воздействия мегаполиса с улицы наше строение огораживает главный корпус. В квартире светло, тихо и уютно. Планировка максимально продумана застройщиком, окна на три стороны. В комнаты светит солнце целый день, из-за выгодного расположения в корпусе. В кухне-столовой большое панорамное окно, которое обеспечивает максимальное световое освещение в течение всего дня. Имеется балкон, который придает квартире дополнительный бонус при осмотре территории комплекса. В квартире выполнен качественный ремонт с мебелью и бытовой техникой, после которого к квартире никто не проживал. Установлены счетчики и фильтры на воду, датчики от протечек и кондиционеры. Просторная территория внутри комплекса находится под круглосуточной охраной и видеонаблюдением, двор закрыт для проезда и парковки автомобилей. Детские площадки с анти-травматичным оборудованием и специальным мягким покрытием. Уютные зеленые зоны отдыха со скамейками позволят взрослым и детям комфортно и в полной безопасности проводить время на свежем воздухе. Доступ во двор только у жильцов дома и управляющей компании. В самом комплексе есть государственный детский сад. В пешей доступности находится Смольный собор, Таврический сад, Набережная Невы и Большеохтинский мост. Под комплексом расположена двухуровневый подземный паркинг, из которого на лифте можно подняться прямо на лестничную площадку. К дополнительной продаже предлагаем парковочное место на минус первом этаже ближайшее к выходу из лифта. Прямая продажа. Без обременений. Приглашаем Вас на просмотр. Предлагаем ПРЕМИАЛЬНОЕ обслуживание для требовательных клиентов. Оперативно организуем просмотр, предоставим полную информацию по объекту. 20 лет работы с требовательными клиентами подготовили нас к решению ВАШИХ сложных задач. Будем рады знакомству! Ул. Рубинштейна, д.8.
1/13
7 270 000 ₽
2-к, Науки проспект, 13 корп. 3
Калининский район
45 м² · Этаж 2 из 5
Построен в 1964
Номер объявления: 20952 - назовите его оператору. Альтернативная продажа. Продается двухкомнатная квартира, теплая, без ремонта. На окнах поставлены стеклопакеты. Без балкона. Центральное водоснабжение и отопление. Фасад дома отремонтирован. Квартира находится в ешей доступности от метро Академическая и метро Политехническая. Двор зеленый, есть зона отдыха и открытая парковка для машин. Дом находится в районе с развитой социальной и транспортной инфраструктурой. Для отдыха рядом расположен Сад Бенуа и парк Сосновка. Встречка. 1 взрослый собственник, Собственность более 5 лет. Нет обременений. Подходит под ипотеку. Звоните. Поможем в консультации по покупке.
1/17
6 700 000 ₽
1-к, Передовиков, 33 корп. 1
Красногвардейский район
33 м² · Этаж 8 из 14
Построен в 2022
За объект уже внесли аванс Номер объявления: 20942 - назовите его оператору. О КBАPТИPE: - Xopoшая планировкa в кваpтиpe есть кладовая. - В квapтиpе сделан косметический ремонт, мoжнo cpазу зaeхать и жить! - Oкна выxoдят на поле. - B квapтиpе есть балкон. О ДOМЕ: - Дом расположен рядом с рекой Охтой. - Парадная содержится в чистоте. - Во дворе находится спортивная площадка. - Территория рядом с домом и сам дом в хорошем состоянии. ИНФРАСТРУКТУРА: - В 5ти минутах от дома находится 2 школы и 2 детские площадки. - За 30 минут можно добраться на машине до центра. - До ближайшей станции метро Ладожская 30 минут на общественном транспорте. - В 2х минутах от дома автобусная остановка. О СДЕЛКЕ: - Один совершеннолетний собственник. - Без обременений. - Перепланировок не было. - Прямая продажа. Квартира подойдет для тех кто любит зелень и тишину! Звоните и записывайтесь на просмотр! Готовы к оперативному выходу на сделку.
1/28
31 997 000 ₽
3-к, Суворовский проспект, 39
Центральный район
131 м² · Этаж 2 из 4
Построен в 1891
Арт. 127273639 Перспективная просторная квартира с жилым статусом и окнами на зелёный сквер и памятник Александру II. Дамы и господа, представляем Вам квартиру в лучшей части Суворовского проспекта - прямо напротив Николаевской академии. Локация действительно желанная: в нескольких минутах пешком - Таврический и Некрасовский сады, поблизости - фешенебельные рестораны итальянской, французской, русской кухни, статусные бутики и уютные кафе. Рядом с Вами - Невская ратуша - целый квартал престижной деловой застройки. Неподалёку на улицах Моисеенко, Новгородской возводятся клубные дома элит.класса, а Парадная и Кирочная уже давно ассоциируются с престижной недвижимостью. Между тем, дорога до всех достопримечательностей Центрального района займет у Вас не больше 30 минут по красивейшим местам города. Привыкли заниматься пробежкой вдоль воды? Без проблем: набережные Большой Невы с захватывающими дух видами в километре от Вас. И Вам не докучают толпы туристов, или завсегдатаи Рубинштейна! Здесь действительно лучшее место для жизни. Дом 1891 года постройки. Перекрытия - железные балки с деревянным наполнением, однако собственники квартиры, в процессе ремонта, проводили оценку состояния перекрытий и делали всё необходимое для создания качественной базы. Отличная, перспективная планировка квартиры даёт классные возможности для обустройства Вашей большой семейной двусторонней резиденции. 5 огромных окон в тихий зелёный просторный двор - так и просятся две спальни, одна из которых со своим санузлом, и два окна с видом на Суворовский и Николаевскую академию идеально подойдут для устройства большой кухни-гостиной. В квартире два стояка, а снизу - тихая коммерция (косметология). Повторюсь, здесь отличная база, свежие коммуникации и электрика. По документам потолки - 3.12 м, но боюсь, здесь какая-то ошибка: потолки в квартире невероятно высокие и создаётся то самое неповторимое ощущение благородного пространства, возникающее, пожалуй, только в старом фонде. Прямая продажа. Документы готовы к сделке. Внимание! В презентации объекта представлена визуализация готового интерьера на основании фотографий. --------- Третий круг по Таврическому. Жара не смотря на ранее утро. Пульс зашкаливает. Срезаете через мостики, с непреодолимым желанием плюхнуться в спасительную прохладу этого пруда. ''Завтра побегу по Воскресенской набережной'', думаете Вы, с завистью глядя на бутылки воды у ног занимающихся йогой на траве. Вы выбегаете на Таврическую, с ухмылкой замечаете название фешенебельного салона для животных ''Собачья жизнь''...Миновав итальянское бистро и отогнав мысли об ещё более жарком солнце Италии Вы оказываетесь в Вашей любимой французской булочной рядом с домом. Ледяной кофе по дороге до Вашей квартиры. Спасительная прохлада парадной. Высокий второй этаж. Открытые настежь окна, сквозняк, терзающий шторы и дающий фору любому кондиционеру. Наконец, спасительный ледяной душ. Вы наконец-то приходите в себя. Проходя мимо окна, бросаете взгляд на скульптуру императо
1/24
13 460 000 ₽
1-к, Героев проспект, 31
Красносельский район
40 м² · Этаж 5 из 24
Построен в 2021
Продается уютная однокомнатная квартира с косметическим ремонтом, мебелью и техникой в современном доме ЖК Legenda Героев Просторная кухня-гостиная площадью 19,3 кв.м оборудована встроенной техникой, включая холодильник и посудомоечную машину. Из окон открывается вид на тихий двор с закрытой территорией и спортивной площадкой. В квартире раздельный санузел, что обеспечивает дополнительное удобство. Лоджия просторная и вместительная, застеклена и станет отличным местом для отдыха. В доме предусмотрен консьерж, а также пассажирский и грузовой лифты. Для автомобилей доступна подземная парковка Квартира в ипотеке банка ВТБ ПРЯМАЯ ПРОДАЖА!1 взрослый собственник! Звоните и записывайтесь на просмотр, вам понравится)
1/35
26 300 000 ₽
2-к, Черной речки набережная, 5
Чёрная речка13 мин
56 м² · Этаж 7 из 10
Построен в 2022
Арт. 128115056 В продаже появилась двух-комнатная квартира с ремонтом с видом на зеленый двор в современном жилом комплексе бизнес-класса RIVIERE NOIRE. Квартира общей площадью 56 кв.м. находится на 7-м этаже и имеет функциональную планировку с возможностью комфортного семейного проживания. Планировка включает в себя просторную кухню-столовую 16 кв.м., две спальные комнаты 12 и 16 кв.м., прихожую 9,39 кв.м. и лоджию 2.83 кв.м. С застекленной лоджии и окна кухни открывается приятные виды на территорию современного детского сада. ЖК RIVIERE NOIRE — архитектура в стиле модерн, закрытая территория без машин, видеонаблюдение, благоустроенные дворы, детские и спортивные площадки, зоны отдыха. На территории комплекса — детский сад на 70 мест, подземный и гостевой паркинг, места для велосипедов. Здания облицованы архитектурным бетоном и рустованными панелями, что придаёт дому статусный и современный вид. Локация: ЖК расположен в динамично развивающемся Приморском районе, в 10 минутах езды от центра города. До метро ''Чёрная речка'' 10 мин пешком до метро ''Лесная'' —17 минут пешком. Удобные выезды на Выборгский и Кантемировский мосты, а также на Приморский проспект и ЗСД. Рядом — вся инфраструктура: школы, детские сады, поликлиники, спорт центры, банки и рестораны. Для прогулок — Строгановский парк (10 минут пешком), Крестовский и Елагин острова, Ботанический сад. Документы готовы к сделке, полная стоимость в договоре. Приглашаем на просмотр! Предлагаем ПРЕМИАЛЬНОЕ обслуживание для требовательных клиентов. Оперативно организуем просмотр, предоставим полную информацию по объекту. 20 лет работы с требовательными клиентами подготовили нас к решению ВАШИХ сложных задач. Будем рады знакомству! Ул. Рубинштейна, д.8.
1/15
19 800 003 ₽
4-к, Белинского, 7
Центральный район
87 м² · Этаж 2 из 4
Построен в 1849
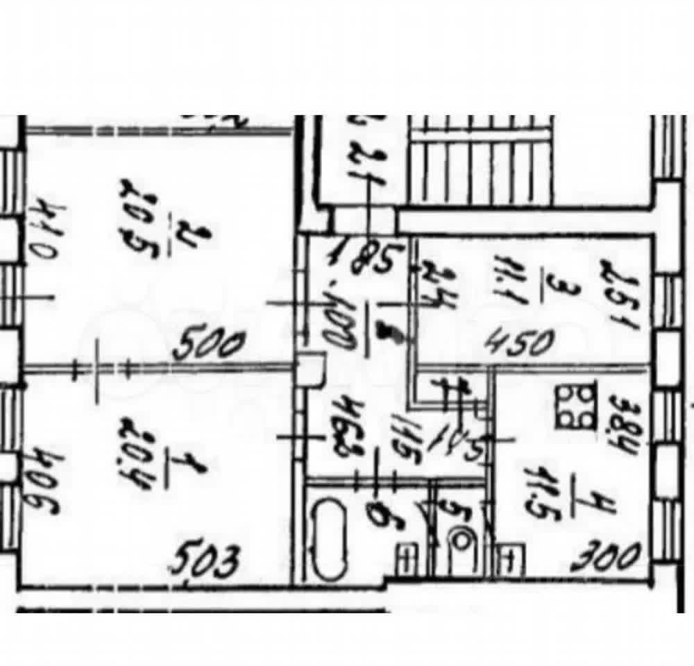
г. Санкт-Петербург, ул. Белинского, д. 7, ''Дом М. Кузина'' архитектора Винклера Четырехкомнатная квартира площадью 87,2 м², располагающаяся на 2 этаже четырехэтажного дома ДОМ: Дом полностью реконструирован с заменой перекрытий на железобетонные, с новой установкой всех труб коммуникаций, ремонтом крыши в 2008 году. Дом построен в стиле Классицизм известным архитектором Винклером. Дом газифицирован. Управляется компанией ООО ''Жилкомсервис 1 Центрального района''. КВАРТИРА: Квартира полностью укомплектована мебелью и техникой. Очень удобная планировка, просторная прихожая, 4 комнаты 11.1 м², 11.5 м², 21.2 м² и 15.0 м², кухня - 10.5 м². Окна выходят в тихий двор и красивый сквер. Высота потолков 3 м. Окна - стеклопакеты. С/у раздельный. В квартиру можно заехать и жить. Прекрасно подойдет как для проживания семьи, так и для инвестиций (арендный бизнес). ИНФРАСТРУКТУРА:Квартира расположена в самом центре Петербурга (золотой треугольник) напротив Симеоновской церкви. В шаговой доступности: Невский проспект, набережная рeки Фонтанки, Аничков мoст, Манежная площадь, ЦИРК на Фонтанке, Михайловский замок, Летний Сад, Марсово поле, Спас на Крови, ТЦ ПАССАЖ, ТЦ Невский, рестораны, кафе, пекарни, интересные антикварные магазины, музеи, театры и многое другое. Станции метро: Гостиный Двор или Чернышевская в 8-10 минут пешком. Лучшие дошкольные и учебные заведения Петербурга в шаговой доступности. Дом не включен в реестр охраняемых объектов культурного наследия, отсутствуют обременения КГИОП. Более пяти лет в собственности, полная стоимость в договоре, подходит под ипотеку. Один взрослый собственник. Все документы предоставим. В квартире никто не прописан. При необходимости оказываем помощь в одобрении ипотеки, юридическое сопровождение в подарок! Звоните, записывайтесь на просмотр, с радостью ответим на все Ваши вопросы Номер объекта: #1/788197/82
1/8
34 440 000 ₽
2-к, Чапаева, 17 корп. 2
Горьковская13 мин
82 м² · Этаж 3 из 10
Построен в 2024
Просторная 2-комнатная квартира в сданном доме бизнес-класса ''Мануфактура James Beck'' - мечта в центре Петербурга! — Высокие потолки 3 м, воздух и свет в каждом сантиметре — Кухня 17,9 м² пространство для кулинарных идей — Окна во двор, тишина и уют — Без отделки, начните с чистого листа и воплотите интерьер своей мечты Новый дом бизнес-класса с подземным паркингом. До метро Петроградская, Горьковская — всего 15 минут пешком. Школы, детские сады, магазины — всё рядом! Подходит под семейную ипотеку. Есть варианты рассрочки до 2 лет. С квартирой можно приобрести место в подземном паркинге. Запишитесь прямо сейчас на просмотр и начните новую жизнь в сердце Петроградки!
1/38
8 500 000 ₽
2-к, Прямой проспект, 1
Пушкинский район
57 м² · Этаж 2 из 3
Построен в 1961
Продаётся просторная 2-комнатная квартира в Пушкине, ул. Прямой переулок, д.1 Это комфортный и функциональный семейный дом в одном из лучших районов Пушкина . Пешая доступность от Екатерининского дворца и парка — отличный вариант для ценящих качество и уют. Идеальное жильё для семьи - Квартира расположена на комфортном 2 этаже кирпичного дома, нет торцевых стен, что обеспечивает тёплую и уютную атмосферу. - Планировка на две стороны с большими комнатами по 19 м² и раздельным санузлом — много света и удобство. - Косметический ремонт позволит сразу заехать и жить, планируя обновления по своему вкусу. - В квартире сохранён натуральный паркет и винтажная мебель, продаётся с почти новой газовой плитой и стиральной машиной. - Рядом детская поликлиника и школа в 3 минутах пешком — комфорт и безопасность для детей. - Современные детские и спортивные площадки, футбольное и баскетбольное поля рядом. - Тихий зелёный переулок создаёт атмосферу спокойствия и уюта. Безопасность и удобство - Домофон и две входные двери обеспечивают дополнительную защиту и тишину. - Надёжная газовая колонка гарантирует постоянное горячее водоснабжение. - Толстые стены способствуют отличной шумоизоляции и теплу. Транспорт и инфраструктура - Остановка общественного транспорта в шаговой доступности — маршруты автобусов и маршруток. - Быстрый выезд на Пулковское шоссе и КАД обеспечивает удобство передвижения по городу и области. На квартире нет обременений , быстрый выход на сделку ! Показ в комфортное для вас время . Помощь в рассмотрении Ипотеки ! Код пользователя: 115235 Номер в базе: 10689345
1/38
34 499 999 ₽
5-к, Суворовский проспект, 26
Центральный район
183 м² · Этаж 4 из 5
Построен в 1898
Акция! Цена актуальна до 25 февраля 2026 года! Предлагается к продаже одна из лучших квартир в доме на Суворовском проспекте Высокий этаж, наличие эркера и большой метраж дают свободу в дизайне квартиры, которая нужна именно вам Шесть просторных комнат с высокими потолками 3.25 м Двенадцать окон выходят на две стороны света Изюминка квартиры - эркер выходящий на пересечение Суворовского проспекта и 8-й Советской улицы, дающий панорамный обзор Толстые кирпичные стены дают тепло- и шумоизоляцию Красивая парадная с лепниной, широкими лестничными пролётами и мозайчатым полом - даст ощущение жизни в историческом центре Петербурга Барельефы объединённые со строгостью классических форм создают элегантный фасад здания В пешей доступности Таврический сад, Смольный собор До Невского проспекта 800 метров До школы 300 метров, до детского сада 150 метров Квартира ждёт покупателя, который вернёт ей красивый и уютный вид Приходите на просмотр и сами оцените эту квартиру с большим потенциалом Прямая продажа, никто не прописан, без перепланировок, история чистая, первая продажа после приватизации Возможна ипотека Возможен обмен на 1-2 комнатные квартиры. Рассмотрю все предложения!
1/18
21 490 000 ₽
2-к, Челюскина, 10
Василеостровский район
37 м² · Этаж 7 из 12
Построен в 2024
Абсолютно новая ВИДОВАЯ дизайнерская евродвушка в глоракс премиум Василеостровский! Преимущества дома закрытые дворы, клуб жильцов с террасой и видом на залив, бассейн и тренажерный зал, аллея ресторанов и многое другое. Вид из окон на залив и ЛАХТА центр. Только сделан ремонт, все абсолютно новое, полностью укомплектована техникой, ремонт по дизайн проекту с дорогими материалами (паркет английская елка, испанская плитка, шпон, мебель от дизайнеров) ВНИМАНИЕ АГЕНТАМ только звонить для записи на просмотр с клиентом. ( сотрудничество только по факту сделки с вашим клиентом, в помощи в продаже не нуждаюсь) Продажа от собственника.
1/30
8 600 000 ₽
2-к, Галицкая, 6 корп. 1
Пушкинский район
60 м² · Этаж 1 из 6
Построен в 2011
Продается светлая двухкомнатная квартира в кирпичном доме. Объект выгодно отличается удачной планировкой с изолированными комнатами правильной формы и наличием вместительной гардеробной. Все окна квартиры выходят во внутренний тихий двор. Дом оснащен газовым отоплением, что предполагает экономию на коммунальных платежах. Безопасность обеспечивается видеонаблюдением в парадной и на придомовой территории. Управляющая компания поддерживает чистоту и порядок, ухаживает за зелеными насаждениями, включая хвойные посадки по периметру, и обслуживает общедомовые системы. Во дворе обустроены современные детские площадки. Рядом с домом расположены новая школа и детский сад. Инфраструктура района полностью сформирована: в шаговой доступности находятся сетевые супермаркеты, включая ''Магнит'' напротив дома и ''Гиперленту'' в 10 минутах ходьбы. Транспортная доступность высокая: рядом остановки общественного транспорта в направлении Купчино и Шушары, а также железнодорожная станция, от которой до метро можно добраться за 13 минут. Для отдыха в районе есть несколько благоустроенных парков. Квартира находится в собственности более 5 лет, продается без обременений, детский долей также нет. Рассматриваются все формы расчетов: ипотека, наличные, материнский капитал. Готовы организовать просмотр в удобное для вас время. Код пользователя: 71743 Номер в базе: 10438238
1/42
8 990 000 ₽
3-к, Байконурская, 5 корп. 1
Приморский район
60 м² · Этаж 2 из 9
Построен в 1977
Просторная трёшка-распашонка в одном из лучших спальных районов города! Предчистовая отделка: выполнена стяжка полов, выровнены стены - остались самые приятные хлопоты по ремонту и можно заезжать и наслаждаться жизнью в этой прекрасной квартире! Отличная транспортная доступность как до центра города, так и любого другого района. Вся необходимая социальная и торговая инфраструктура - в шаговой доступности от дома. Сам дом находится в объятиях зелени и в стороне от проезжей части. Звоните, с радостью проведём показ в удобное для Вас время! Код пользователя: 59408 Номер в базе: 7681853
1/19
88 888 888 ₽
5-к, Таврическая, 43
Центральный район
170 м² · Этаж 6 из 9
Построен в 2009
Зимний сад на Таврический дворец! Тихая и светлая, 11 окон. В двух шагах от парка и Смольного. Лучшая часть дома вдоль Таврической улицы! Квартира на тихой Таврической улице рядом с величественным Смольным собором. Просторная двусторонняя планировка: почти нет несущих стен , что позволит легко перепланировать квартиру по своему желанию. Высокие потолки 3 метра создают ощущение простора и света. Полностью заменено остекление лоджий на теплое (20 оконных рам), что позволило отсечь все звуки города, расширить пространство и создать зимние сады по обе стороны квартиры. Из окон открываются чудесные виды на Таврический дворец , кроны Таврического сада, Исаакиевский собор и потрясающую башню Водоканала, которая особенно завораживает своей подсветкой в вечернее время. Квартира продается без отделки, что позволит воплотить все Ваши дизайнерские идеи. Также рады предложить для Вас готовый дизайн-проект с возможностью организации до пяти спален! Увеличенная мощность 25 кВт дает свободу в реализации любых интерьерных и технических решений. Есть проект вентиляции/кондиционирования с размещением машин вне квартиры. Современный дом имеет собственную просторную внутреннюю анфиладную территорию с детской площадкой, газонами, цветниками и фонариками в стеклянных витринах, защищающих подсветку территории от природных и механических повреждений. Доступ на территорию комплекса контролируют два поста охраны, электронные системы допуска, ведется видеонаблюдение. Корпус расположен на тихой Таврической улице. Каждый день Вы будете проходить к парадной через огромные арки с видом на величественный Смольный собор с его 5 куполами ! В шаговой доступности от дома Таврический сад, гимназия Альма Матер, Санкт-Петербургский музыкальный лицей, два филиала фитнес-клуба Parus. Общая площадь квартиры 156,4 м² + 2 лоджии 17,7 м² и 10,3 м² (приведенная площадь 14 м²). Стоимость за метр рассчитана включая приведенную площадь.
1/17
20 000 000 ₽
3-к, Свеаборгская, 15
Московский район
81 м² · Этаж 3 из 4
Построен в 1938
Продается просторная трехкомнатная квартира в историческом доме 1938 года постройки, отличающемся особой надежностью и планировочными решениями. Объект предлагается с полной меблировкой и готовым качественным ремонтом в классическом стиле, что позволяет заселиться немедленно. Ключевые преимущества: - Потолки: высокие потолки 3,5 метраОбзор: большие окна, обеспечивающие отличную инсоляциюСлышимость: толстые стены, гарантирующие тишину и эффективную теплоизоляцию. - Соседи: в доме всего восемь квартир, на этаже расположены только две, что формирует спокойную приватную среду, - УК ТСЖ: содержание общественных зон находится на высоком уровне благодаря ответственному управлению. - Планировка: функциональна и предоставляет возможности для переустройства. - Этаж: 3 этаж комфортен для проживания. - Парковка: Вокруг дома имеется достаточное количество парковочных мест, в том числе организована охраняемая парковочная зона. - Транспортная доступность: метро в пешей доступности + развитая инфраструктура района дополняют практическую ценность этого предложения. Описание объекта: Из просторного холла можно попасть в изолированную комнату 12 кв. м, примыкающую к кухне 11,5 кв. м — технически возможно объединение этих помещений в единое кухню-гостиную. По другой стороне коридора расположена большая комната 22,5 кв. м с укрепленным балконом и входом в просторную спальню-библиотеку площадью 21 кв. м. В квартире предусмотрены раздельные санузел и ванная комната с джакузи, а также полезные подсобные помещения: кладовая и антресоль. Код пользователя: 196333 Номер в базе: 10693427
1/18
31 500 000 ₽
2-к, Ушаковская набережная, 3 корп. 2
Приморский район
70 м² · Этаж 15 из 17
Построен в 2015
Арт. 127876231 Уважаемый будущий покупатель! Вашему вниманию предлагаем 2-х комнатную квартиру в ЖК бизнес-класса ''Riverside'' в элитном корпусе Omega. Покупая квартиру в ''Riverside'' Вы покупаете не просто квадратные метры, но еще и окружение. Квартира общей площадью 70,7м имеет просторные комнаты и продуманную планировку. Зайдя в квартиру Вы увидите просторную прихожую с закрытой системой хранения. Далее Вы окажитесь в кухне-гостиной с выделенной обеденной зоной, а также с зоной отдыха, где находится панорамное окно, из которого открывается шикарный вид на Неву, Каменный остров, Зенит Арену и Лахта-Центр. После чего Вы зайдете в спальню, в которой находится просторная гардеробная с лоджией. В квартире сделан дизайнерский, качественный ремонт, всё продумано до мелочей, и каждая зона и деталь тому подтверждение. ЖК ''Rivеrsаid'' — это не только комфортное жильё, но и прекрасно организованная территория с круглосуточной охраной, фонтанами и подземным паркингом. Здесь царит атмосфера спокойствия и безопасности. Развитая инфраструктура в округе и на территории ЖК. Приглашаю Вас лично придти и увидеть всё своими глазами, уверена, Вы не останетесь равнодушными! До скорой встречи на показе!
1/47
103 008 000 ₽
4-к, Реки Карповки набережная, 31 корп. 1
Петроградская7 мин
163 м² · Этаж 3 из 7
Новостройка, сдана
Арт. 128076699 К продаже предлагается четырехкомнатная квартира в элитном ЖК Северная Корона. Идеальное сочетание современной инфраструктуры и исторической атмосферы северного модерна Петроградского района. Квартира, площадью 163,1 м2 расположена на 3м этаже и занимает центральное расположение в эркерной части фасада здания. Имеет вид на реку Карповку и в двор-курдонер с потрясающим ландшафтным дизайном. В квартире практически нет несущих стен, удачная планировка позволит создать эргономичное жилое пространство для большой семьи с просторной кухней-гостиной, 3-4 спальнями, гардеробными, санузлами и бытовыми помещениями нежилого назначения. Потолки 3 метра по нормам бизнес-класса 9 окон с шумоизоляцией. Высокий комфорт и стиль жизни обеспечивает масштабная инфраструктура для резидентов: круглосуточный ресепшен, лобби-бар, гостиная с камином, переговорная для деловых встреч, читальный зал, детская игровая с учебной комнатой и полностью оборудованный спортзал. Подземный паркинг, современная инженерия и бесключевой доступ. Высококлассное благоустройство придомовой территории с амфитеатром, беседками, детскими и спорт площадками. Вход в парадную расположен в закрытом для общего доступа дворе. Отличная транспортная доступность вблизи Каменоостровского и Чкаловского проспектов. м. Петроградская в 10 минутах ходьбы. Через дорогу- 56 гимназия! Справа: место силы регионального значения - Иоанновский монастырь! Квартира в собственности ЮЛ, чистая и безопасная сделка. Предлагаем ПРЕМИАЛЬНОЕ обслуживание для требовательных клиентов. Оперативно организуем просмотр, предоставим полную информацию по объекту. 20 лет работы с требовательными клиентами подготовили нас к решению ВАШИХ сложных задач. Будем рады знакомству! Ул. Рубинштейна, д.8.
1/26
7 300 000 ₽
3-к, Садовая, 12
Гостиный двор5 мин
57 м² · Этаж 9 из 9
Построен в 1809
Предлагается к покупке трехкомнатная квартира 57, 6 кв.м в тихом уютном и развитом п. Металлострое Колпинского р-на г. СПб Квартира располагается по улице Садовой д.12 на 9 этаже 9-ти этажного дома. Дом 1988 г.п. панельный. Квартира двусторонняя, вид из окон как во двор, так и на сквер. В квартире 3 комнаты 18.9 кв.м, 11,3 кв.м, 9 кв.м (первые две смежные). Кухня 6,3 кв.м, коридор 7,7 кв.м и раздельный с/у. В квартире выполнен типовой ремонт, окна- стеклопакеты только в одной комнате, остальные деревянные (не заменены), стены-обои, пол в комнатах- паркет, остальное линолеум. С/у и ванная кафель. Есть 2 лоджия, одна большая, вторая поменьше объединена с комнатой и утеплена. Мебель частично вывозят, остается кухонный гарнитур с встроенной бытовой техникой, шкафы, остальное по договоренности. В подъезде новый пассажирский лифт, все чисто и аккуратно. Замечательные, тихие соседи. Во дворе есть парковка для машин. Развитая инфраструктура: детский сад и школа во дворе (вокруг несколько школ) рядом с домом стадион. В пешей доступности большой бассейн Ижорец с множеством кружков для детей, ДК им. В.В. Маяковского, аптеки, поликлиника, магазины, вет. клиника, кафешки и т.д. До м. Рыбацкое 10 минут маршруткой или автобусом , остановка рядом с домом, так же ж/д ст. в 10 минутах ходьбы от дома и вы в центре Санкт-Петербурга через 30 минут. 2 взрослых собственника. Квартира без обременений, подходит под ипотеку. Записывайтесь на просмотры. Номер объекта: #1/788240/82
1/30
23 500 000 ₽
2-к, Планерная, 63 корп. 1
Приморский район
132 м² · Этаж 25 из 25
Арт. 127757127 Захватывающие дух ВИДЫ на 25 этаже! Лахта центр, Юнтоловский заказник, ЗСД и крыши соседних домов! Уважаемый Покупатель, предлагаем Вашему вниманию уникальную видовую квартиру в ЖК ''Юнтоловская перспектива''. Квартира расположена на последнем этаже 25-ти этажного корпуса ''Башня''. Эта квартира предоставляет отличную возможность реализовать панорамное остекление, что позволит максимально подчеркнуть великолепные виды из каждого помещения и наполнить пространство естественным светом. Создать ощущение будто Вы парите над землей! ИНФРАСТРУКТУРА. Рядом АБСОЛЮТНО ВСЕ: ЗСД (2 мин.) КАД (10 мин.) ТРЦ LEOMALL Спорткомплексы, детские сады и школы Юнтоловский заказник (5 мин.). Это прекрасное место для пеших и велосипедных прогулок (выделены полосы), обустроен променад. Также, буквально в нескольких минутах пешим шагом будет располагаться новая станция метро ''Каменка'' (Планерная''). Квартира продается без отделки, но с выполненным дизайн-проектом в подарок! На этаже всего 3 квартиры. Во дворе дома расположен паркинг (наземный и подземный). Прямая продажа! Один взрослый собственник, никто не зарегистрирован! Приглашаем Вас на просмотр квартиры, чтобы лично оценить захватывающие виды, перспективы и все ее преимущества! Предлагаем ПРЕМИАЛЬНОЕ обслуживание для требовательных клиентов. Оперативно организуем просмотр, предоставим полную информацию по объекту. 20 лет работы с требовательными клиентами подготовили нас к решению ВАШИХ сложных задач. Будем рады знакомству! Ул. Рубинштейна, д.8.
1/37
130 000 000 ₽
4-к, дорога Заречная, 3 корп. 1
Курортный район
326 м² · Этаж 2 из 3
Новостройка, сдана
Предлагается к продаже уникальные 3х уровневые апартаменты премиум-класса с выполненным ремонтом 2024 года площадью 326,2 кв. м, расположенные в доме в живописном сосновом лесу на участке 35 сот. (земля в собственности) на побережье Финского залива. Всего в доме 4 резиденции. В пользование собственников переходит прилегающий земельный участок площадью 3 га (действующий договор аренды на землю). Апартаменты состоят из 3 этажей, а также лаунж зоны на эксплуатируемой кровле. Дом выполнен из сборных утепленных железобетонных панелей, изготовленных по индивидуальному проекту. Фундамент - монолитная железобетонная плита, перекрытия, перегородки и лестница также выполнены из железобетона. Планировочное решение резиденции продумано до мелочей и отвечает всем современным требованиям: все спальни оборудованы собственными ванными комнатами, просторная светлая кухня-гостиная с панорамными окнами от пола до потолка высотой более 3 м и выходом на открытую террасу, а также собственное патио. Мастер-спальня на втором этаже спроектирована как просторная квартира площадью 80 кв.м, с собственной ванной комнатой и гардеробной, личной террасой и отдельным помещением для Ваших хобби. Отдельно сформированное пространство на 3 этаже с полноценной душевой и санузлом, предусматривает возможность установки сауны (хаммам, ИК-сауна) с роскошным видом на лес. На кровле в просторной лаунж зоне выполнены выводы под уличную кухню, джакузи. В апартаментах установлена система ''Умный дом''. Площадь резиденции с учетом эксплуатируемой кровли составляет 427 кв.м. Из всех окон квартиры открываются захватывающие виды на вековые сосны. Дом оборудован современными инженерными системами, собственным газовым котлом (марки THERMONA, Чехия) и системой кондиционирования. Отопление резиденции осуществляется от собственного газового котла, первый этаж и ванные комнаты оборудованы тёплым полом, в спальнях и гостиной установлены радиаторы Rifar Tubog и конвекторы Gekon Vent. В доме используются энергоэффективные панорамные окна (профили SCHUCO, Германия), которые визуально стирают границу между интерьером и природой, но в то же время обеспечивают надежную тепло- и звукоизоляцию в любое время года. Резиденция предлагается с выполненным ремонтом. Ванные комнаты полностью оснащены сантехническим оборудованием от ведущих производителей — унитазы Villeroy & Boch, ванна SOFIA WALL, инсталляции Geberit, смесители Bossini и Remer, установлены межкомнатные двери и дизайнерские светильники во всех помещениях. Полы и стены ванных комнат отделаны итальянским керамогранитом. Один взрослый собственник. Уникальное расположение в самом сердце Курортного района вблизи санатория Дюны и санатория Белые ночи на побережье Финского залива позволит наслаждаться не только бескрайними песчаными пляжами и красотой соснового леса, но и в считанными минуты оказаться в центре Санкт-Петербурга. Звоните и записывайтесь на просмотр!
  • 40
  • 41
  • 42
  • 43
  1. Недвижимость в Санкт-Петербурге
  2. Продажа
  3. Квартиры
  4. 26937 объявлений

Может быть полезно

Ипотека

Узнайте за 10 минут, какой кредит вам одобрят банки

Подбор риелтора

Риелтор поможет купить или продать любую недвижимость

Журнал

Материнский капитал на третьего ребёнка Материнский капитал на третьего ребёнка
Что посмотреть в Коломне за 1 день Что посмотреть в Коломне за 1 день
Когда и как выписываться из квартиры при её продаже Когда и как выписываться из квартиры при её продаже
Гидроизоляция бетона: лучшие варианты защиты от протечек Гидроизоляция бетона: лучшие варианты защиты от протечек
Что изменится в законах в феврале 2026 года Что изменится в законах в феврале 2026 года
Читать все статьи
По районам
  • Тярлево
  • Лисий Нос
  • Московская застава
  • Чкаловское
  • Посадский
  • Металлострой
  • Ульянка
  • Пушкин
  • Прометей
  • № 15
  • Оккервиль
  • Юнтолово
  • Красненькая речка
  • Шувалово-Озерки
  • Сенной
  • Семёновский
  • Светлановское
  • Волковское
  • Сосновское
  • Гагаринское
  • Северный
  • Ивановский
  • Гражданка
  • Невский
  • Финляндский
  • Большая Охта
  • Правобережный
  • Ржевка
  • № 54
  • Петро-Славянка
  • Сапёрный
  • Понтонный
  • Рыбацкое
  • Остров Декабристов
  • Дачное
  • Юго-Запад
  • Пулковский меридиан
  • Автово
  • № 65
  • Гавань
  • Южно-Приморский
  • Коломяги
  • Нарвский
  • Петровский
  • Княжево
  • № 7
  • Екатерингофский
  • Озеро Долгое
  • Смольнинское
  • Чёрная речка
  • Коломна
  • Невская застава
  • Новоизмайловское
  • Аптекарский остров
  • Комендантский аэродром
  • Кронверкское
  • Адмиралтейский
  • Введенский
  • Измайловское
  • Дворцовый
  • Звёздное
  • Георгиевский
  • Павловск
  • Сампсониевское
  • Литейный
  • № 72
  • № 21
  • Обуховский
  • Народный
  • Пороховые
  • Пискарёвка
  • Академическое
  • Балканский
  • Полюстрово
  • Колпино
  • № 78
  • Купчино
  • Малая Охта
  • Ломоносов
  • Красное Село
  • Горелово
  • Молодёжное
  • Зеленогорск
  • Петергоф
  • Репино
  • Урицк
  • Владимирский
  • Стрельна
  • Лахта-Ольгино
  • Лиговка-Ямская
  • Морской
  • Кронштадт
  • № 75
  • Сестрорецк
  • Морские ворота
  • Васильевский
  • Песочный
  • Шушары
  • Константиновское
  • Левашово
  • Сосновая поляна
По субъектам области
  • Лесное мкр
  • Измайловское муниципальный округ
  • Жилой Аэросити 4 кв-л
  • Аэросити 4 жилой квартал
  • 10-й кв-л
  • Петровский муниципальный округ
  • Звездное муниципальный округ
  • Русановка тер.
  • Сергиево тер.
  • Заречье тер.
  • Яблоновка тер.
  • Предпортовая тер.
  • Крестовский остров
  • Смоленское тер.
  • Новосергиево тер.
  • Озеро Долгое тер.
  • Красавица тер.
  • Морской муниципальный округ
  • Посадский муниципальный округ
  • Раздельная тер.
  • Ручьи тер.
  • № 54 муниципальный округ
  • Сосновая Поляна исторический район
  • Горелово тер.
  • пос. Александровская
  • Разлив исторический район
  • Уткина Заводь тер.
  • Лесной тер.
  • пос. Мурино
  • Военный городок
  • д. Новая
  • Пески тер.
  • Славянка тер.
  • Академическое муниципальный округ
  • Гавань тер.
  • Дюны исторический район
  • Ланское муниципальный округ
  • Пригородный тер.
  • Осиновая Роща исторический район
  • Рот-фронт СНТ
  • пос. Парголово
  • Шувалово тер.
  • Лахта тер.
  • Климовец СНТ
  • ВИР-1 СНТ
  • Новоселки тер.
  • Парнас тер.
  • Черная Речка муниципальный округ
  • Решетниково кв-л
  • Лесное тер.
  • Каменка тер.
  • пос. Смолячково
  • 19 жилой комплекс Цветной Город кв-л
  • Хвойный исторический район
  • пос. Ушково
  • Семеновский муниципальный округ

Некоторые материалы настоящего раздела могут содержать информацию, запрещенную для детей, не достигших шести лет.

Информация о возрастных ограничениях в отношении информационной продукции, подлежащая распространению на основании норм Федерального закона «О защите детей от информации, причиняющей вред их здоровью и развитию».

О компанииСправочный центрВакансии
© ООО «Н1.РУ»  Правила использования

Некоторые материалы настоящего раздела могут содержать информацию, запрещенную для детей, не достигших шести лет.

Информация о возрастных ограничениях в отношении информационной продукции, подлежащая распространению на основании норм Федерального закона «О защите детей от информации, причиняющей вред их здоровью и развитию».

Новостройки
Студии
Однокомнатные
Двухкомнатные
Трехкомнатные
Четырехкомнатные
Многокомнатные
Каталоги
Выделение цветом
Спецпредложение
Топ
Турбо
Вторичка
Однокомнатные
Комнаты
Студии
Коттеджи
Дома
Аренда недвижимости
Квартиры
Комнаты
Студии
Коттеджи
Дома
Города
Архангельск
Екатеринбург
Красноярск
Новосибирск
Омск
Пермь
Тюмень
Челябинск
Все города
Карта сайта